Notto Signature Room

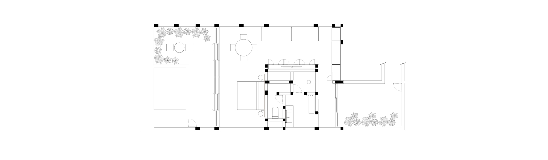
Generous interiors and an expansive terrace create a private sanctuary. Designed for absolute privacy and a direct connection to the distinctive Notto Hotels experience.

The distinctive Notto Hotels experience.
A privileged location, expansive spaces, elevated stay.
Private terrace equipped with a plunge pool.